breaking news

Piazza Pacca, infopoint in spazi non ancora indagati

Piazza Pacca, infopoint in spazi non ancora indagati

1 Agosto 2023 | by Enzo Colarusso
Piazza Pacca, infopoint in spazi non ancora indagati
Attualità
0

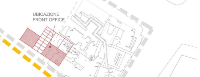
Sarebbe questo il punto esatto dove il Comune di Benevento ha deciso che dovrà sorgere il front office per cui la Soprintendenza per i beni archeologici di Caserta e Benevento ha concesso il benestare in base alla relazione Foresta del 25 luglio scorso. Foresta che compare nel novero ma non appare la sua firma e questo potrebbe dare la stura ad una buona dose di distinguo che l’archeologo avrebbe voluto porre in risalto, forse non in perfetto accordo con quanto poi sia stato deciso.

Sta di fatto che la firma in calce che non c’è autorizza a porre interrogativi. Tornando alla planimetria di cui siamo entrati in possesso essa suscita qualche dubbio proprio in merito al posto dove s’è deciso di piazzare l’infopoint che è la parte degli scavi che guarda alle mura longobarde. E’ quella l’area delle tombe, ed anche un settore ancora non indagato dalla Soprintedenza che ha disposto il proseguimento degli scavi “preliminarmente alla fase realizzativa dell’opera nell’area del settore E”.

 

Il Soprintedente autorizza quindi la ubicazione sull’area libera da reperti ma la struttura, in base a questa planimetria, pare insistere su zone non ancora sondate da quelle “indagini archeologiche in profondità” disposte dalla relazione della Soprintendenza. Senza dubbio il Comune avrà eccepito in toto le disposizioni della Soprintendenza ma da questra planimetria sembrerebbe che qualcosa sia sfuggito alla direzione tecnica dei lavori. Direzione che, sempre secondo la relazione firmata dai soli Di Muccio e Leva ma non da Simone Foresta, dovrà avvalersi di maestranze specializzate per le successive attività di movimentazione terra che pare, la cautela è sempre obbligatoria, dovrebbero concentrarsi in buona parte proprio negli spazi dove andrà ad essere collocato il front office.

Lascia un commento

Il tuo indirizzo email non sarà pubblicato. I campi obbligatori sono contrassegnati *